胶州两大企业项目规划调整,1月9日,天驰(上合)冷链项目建设工程规划方案变更批前公布,项目由青岛天驰物流有限公司建设,位于上合示范区湘江支路6号。
项目用地面积66712.9㎡,用地性质为工业/冷库用地,计容面积77391.2㎡,建筑面积46520.96㎡,地上建构物包括展厅、生活服务中心,两栋1层厂房、三栋1层冷库、1栋4层车间,容积率1.16,绿地率15%,建筑密度50.85%,机动车停车位85个。民用建筑占地面积2700㎡,占建设用地面积4%。本次改造部分为3#厂房,南侧部分拆除。



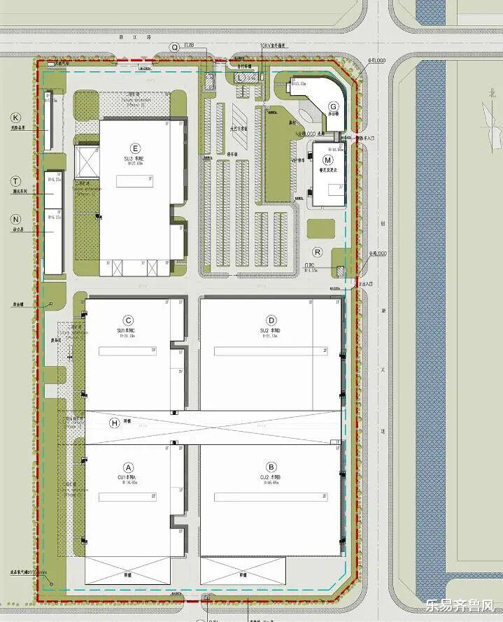
另外,阿法拉伐(工业)青岛有限公司也将实施办公楼扩建及化学品库修复项目,项目位于胶州经济技术开发区闽江路以北,创新大道以东,赣江路以南。项目用地面积128282㎡,用地性质为二类工业用地,建筑总面积76410.9㎡,绿地率13.3%,容积率1.03。建筑密度:58.1%,建筑高度:4.1~27.65m,机动车停车位355个,其中二期拟建4106.95㎡。




