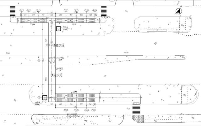
近日,清远市自然资源局网站发布批前公示,。
根据批前公示,人行天桥位于清城区清远大道与永安路交叉口处,横跨清远大道。天桥主桥全长64.8m,净宽5m,主桥为2跨,于道路中央绿化带设置桥墩;南北两侧均设梯道,北侧设两个梯道,梯道坡度分别为1:2.615和1:4,两个梯道共长52.72m,单个梯道净宽3m;南侧设一个梯道,梯道坡度1:4,全长30.6m,单个梯道净宽6m。


清远发布编辑部
校对:杜燕
二审:陈晓茵
三审:蔡鸿雁

近日,清远市自然资源局网站发布批前公示,。
根据批前公示,人行天桥位于清城区清远大道与永安路交叉口处,横跨清远大道。天桥主桥全长64.8m,净宽5m,主桥为2跨,于道路中央绿化带设置桥墩;南北两侧均设梯道,北侧设两个梯道,梯道坡度分别为1:2.615和1:4,两个梯道共长52.72m,单个梯道净宽3m;南侧设一个梯道,梯道坡度1:4,全长30.6m,单个梯道净宽6m。


清远发布编辑部
校对:杜燕
二审:陈晓茵
三审:蔡鸿雁
