群发资讯网
大平层不再只为睡觉:两稿方案定义家的属性
2026-01-20 18:53:29
空间设计事务
生活
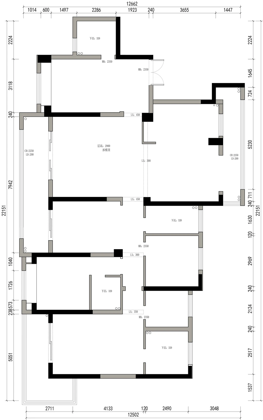
「iGo户型优化336期」 套内面积:200㎡ 甲方设计需求很明确: 既要成人的乐趣,也要孩子的成长与陪伴。 ▪️ 核心需求清单 ▫️ ✅ 主卧 + 客房 + 儿童房,三房必备 ✅ 独立电竞房:大人的沉浸式精神角落 ✅ 开放亲子区:孩子的玩耍、阅读与陪伴的成长空间 ✅ 中西厨+大岛台+大餐厅:社交型餐厨,聚会C位 ✅ 利用大平层优势,做到开阔通透,动线流畅 设计的魅力,就是把所有“想要”变成“可能”。 让家不仅能休息,更能承载热爱、陪伴与相聚的每一种形态。
猜你喜欢
做为养老房,390㎡别墅是顶级的,不管是布局,还是动线,体会到它的巧思和悠闲!
2026-01-27
里二户型改造说
标签:
别墅
隔断
客厅
书房
高级的279.8㎡的房子,内部竟然配置了三个极致的花园,非常浪漫。扁平效果。
2025-12-29
冬萱看户型
标签:
非常浪漫
卧室
房屋买卖
网友:你会在湾湾买新房吗?马筱梅:我本来就在湾湾有一套房子,没有要买新房。我们
2026-01-02
醉波说听娱乐
标签:
新房
房屋买卖
他真的一点架子都没有,三叶草布局有板眼,动线普通却却好接地气,虽是四方形,216
2026-01-22
里二户型改造说
标签:
客厅
收纳柜
书房
这种奇葩户型的房子,你敢买吗?
2026-01-26
天津老张啊
表妹在售楼处上班,说有套捡漏房让我抓紧入手:118平的小高层,学区房,原110万
2026-01-28
大军的日记
标签:
学区房
大平层唯一不好的就是隐私性太差了。
2026-01-26
千风夜谈小姐姐
这玩意儿,户型很霸气,一般人解不开168㎡,亲子宅的白月光,福气来自会搭配!
2026-01-19
里二户型改造说
标签:
衣帽间
客厅
厨房
热门分类
推荐
热榜
军事
NBA
体育
社会
明星八卦
娱乐
财经
科技
汽车
历史
国际
游戏
动漫
公益
搞笑
商业
互联网
数码
国际足球
房产
家居
时尚
科学探索
职场
育儿
股票
教育
影视
情感
热点
中国军情
武器
中国南海
中国足球
亚洲杯
科比
综合体育
CBA
投资
楼市
大咖秀
外汇
创业
风口
SUV
豪车
概念车
优惠
新能源
美国
欧洲
朝日韩
俄罗斯
孕期
街拍
恋爱攻略
婚姻
正能量