群发资讯网

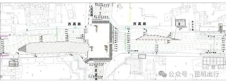
昆明人盼了十年,特别是金碧路,西昌路,潘家湾沿线一带的人们,一直到建设路,总里程

昆明人盼了十年,特别是金碧路,西昌路,潘家湾沿线一带的人们,一直到建设路,总里程八公里不到的昆明一号线二期,在一个星期前就是说了要围档西昌路,潘家湾这里的施工,今天去现场看了一下,终于是围起来了,但是还没有机械设备进场,把人们行走的地方隔开了,希望沿线的人们,需要通过这段路的市民们提前做好规划,能选择别的道路绕行的,尽量提前绕行。希望大家都多多的理解,地铁的建设靠大家的配合! 前久还有的市民建言献策的,说是可以把这条线提前跨站运行。昆明市交通运输局留言板回复是暂时不俱备通行,跨站运行。现在正研究剩下的工程施工方案。当地的市民们,你们对1号线二期西北延长线的盼望是有多期待?大家评论区留言!